新农村自建房设计图10万以内
的有关信息介绍如下:新农村自建房设计图:乡村别墅设计图、农村一层半小别墅设计图、一层半房屋设计图。
1.户型1:
户型基本信息:占地面积:14.0m*11.0m,占地面积150平左右;建筑层高:一层半(带阁楼);建筑高度:7.50米(含屋顶)。
本户型为一层带阁楼乡村别墅设计图,含外观图片,户型布局实用,客厅中空。二层预留部分空间让用户自行隔断,可以做客厅,可以做运动房等等,外观经典、漂亮。

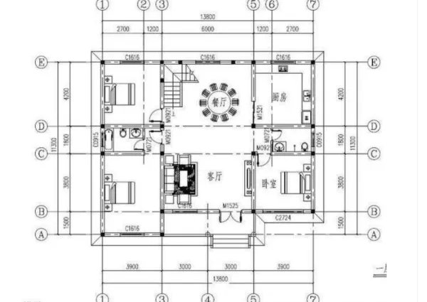
2.户型2:
户型基本信息:占地面积:13.80m*11.30m,155平方米左右;建筑层高:一层半;建筑高度:7.58米(含屋顶)。
本户型为农村一层半小别墅设计图(一层带阁楼),外观艳丽,富有现代气息,户型布局合理。一层已经能满足大部分家庭的使用,二层中有一个主卧带书房和卫生间。

3.户型3:
户型基本信息:占地面积:占地面积:12.7*10.8_,129.87平方米左右;建筑层高:一层半;建筑高度:7米(含屋顶)。
本户型为一层半房屋设计图,坡屋顶造型,隔热保温非常舒服。东边边设厨房客厅,餐厅,西边设卧室。

注意事项:
1.户型一:一层户型设计:客厅、餐厅、厨房、主卧(带卫生间)、卧室x2、储物间、卫生间。
2.户型二:一层:客厅、餐厅、厨房、卫生间、主卧(带卫生间)、卧室x2。
3.户型三:一层:客厅、餐厅、厨房、卫生间、主卧(带卫生间)、卧室、储藏室。



