简约而不简单是一种对待生活的态度
的有关信息介绍如下:面积:78
设计师:陈浩森
风格:现代简约
本方案是围绕现代简约为主题,以简洁明快的设计风格为主调,简洁和实用是现代简约风格的基本特点。简约风格已经大行其道几年了,仍然保持很猛的势头,这是因为人们装修时总希望在经济、实用、舒适的同时,体现一定的文化品味。而简约风格不仅注重居室的实用性,而且还体现出了现代社会生活的精致与个性,符合现代人的生活品位

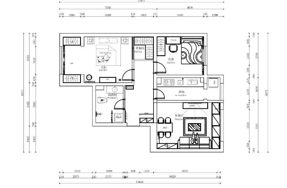
原始户型图可以看出,主卧的面积比较大,客餐厅连在一起,房屋建构钢筋水泥,只有极少墙体可以拆改,每个局部空间设计合理建议客户不改变格局,了解需求一个上初中的孩子,作出一个公主房,给孩子一个舒适的生活和学习空间,做好能做出一个坐在上面看书的区域。

平面布置图:在空间布局、每个空间的功能化,客厅设计了假窗式的设计在居家生活中增加休闲功能。

客厅是主任品味的象征,体现了主人品格,地位,也是交友娱乐的场合,配上顶部照下来的灯光,整个电视背景墙把客厅提升起来。沙发背景墙只做了简单的处理,用细木工板贴上黑色的亚克力板,做了一个悬挂的台面,上面可以放装饰画等,一些装饰品非常实用。

餐厅是家居生活的心脏,不仅要美观,更重要的实用性,整体性。餐厅的灯光很重要既不能太强又不能太弱,灯光则以温馨和暖的黄色为基调,在餐桌的墙面上作了一个餐边柜,可以摆放一些饰品,可以增加以下餐厅的情调。餐厅的垭口用实木套做了装修。

简洁和实用是现代简约风格的基本特点。加上传统的中式风格让人感觉舒适和恬静,适度的装饰是家居不缺乏时代气息,使人在在空间得到精神和身体的放松,并紧跟着时尚的步伐,也满足的现代人‘混搭’的乐趣。

简约风格的家具,在颜色搭配上也很简单。主要以亮灰色为主,没有太重,太跳的的颜色。以简洁的造型和别出心裁的摆放,打造温馨,时尚的家居空间

简约的装修风格一切从务实出发,不讲究那些花哨的装饰。从这这一点也看出了一种现代消费者的消费观,注重健康生活,节俭节约。简约的风格设计,因为简约,也可以避免很多的不合理因素产生。

女儿房以粉色为主,根据空间的大小衣柜和写字台定制连体L型,增加空间的实用性和功能性。

所谓的简约,并不等于简单!而是说将实用放在第一位,该有的东西一样不能落下。它不是说随意的将家居进行摆放就完,而是要通过房间的尺寸精心的编排的 。

现代简约的设计风格具有实用、简洁、功能性强等特点。非常符合现代年轻人的需求。因为现在生活在节奏较快的都市中,整天在忙碌中度过,时间长了会使人感觉非常的疲惫。所以与红红绿绿的跳眼颜色相比,更需要种浅色调,营造一种温馨、安静的生活氛围。
什么,装修还用自己的钱?!齐家装修分期,超低年利率3.55%起,最高可贷100万。立即申请享受优惠



