58㎡也可以挤出2间房还不拥挤。
的有关信息介绍如下:住房越来越紧张,但人是不可能变少的了,在小空间里面如何满足大需求呢?跟着齐齐一起去看看下面的案例吧!

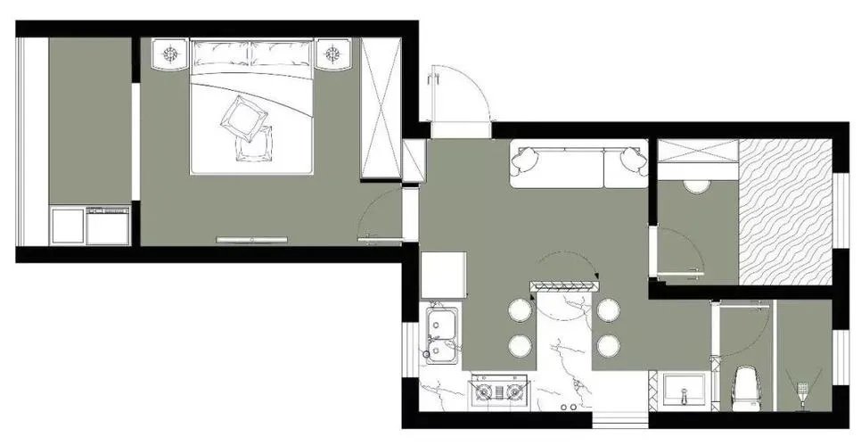
平面布置图

入户没有玄关走廊的户型,在入户门的侧方做上了迷你的到顶鞋柜,鞋柜的中间留空一部分,这样钥匙、包包等也有个放的地方。

在入户门的另一侧就是客厅空间,舍弃了茶几和电视柜,让空间显得更为宽敞。灰色调的沙发背景墙和沙发相互呼应,带来轻松质感。

电视嵌入了半墙隔断当中,还做了可旋转的设计。电视背景墙后方是开放式的餐厨空间,吧台式的餐桌把厨房和卫生间的干区给分开。

L型的厨房橱柜布局,橱柜的台面把餐桌也给连在了一起,顶部不做吊柜,用置物架来代替,这样可以避免厨房空间显得太过压抑。

主卧室内的搭配有着北欧风的感觉,温馨的木质家具加上灰色调的墙面和软装,通过挂画作为点缀,整个卧室给人一种年轻大方的感觉。

儿童房的面积更小,摆放了一张榻榻米床,床尾做上衣柜,侧方摆放书桌,墙面的置物架作为书架,满足孩子学习和睡眠的需求。

卫生间的干区被放在了餐厨的侧方,洗手台外移也能更好的做干湿分离,日常洗漱也会方便一些,减少争抢卫生间的问题。

卫生间的内部用挡水条加上浴帘来干湿分离,在淋浴区的转角处还做一个置物架,加上马桶上方的毛巾架,这样就担心东西没地方放了。

阳台位于主卧室的外面,上方都是玻璃的设计让阳台少了一些收纳空间,把洗衣机和洗手台结合在一起,省空间也更为实用。
想要在小空间里面能有大布局
或者点击【齐家典尚清远体验馆】联系齐齐
让齐家设计师帮你设计空间布局
给你一个更好的家吧~

装修选齐家,给您一个满意的家

齐家典尚清远体验馆

家之所在,心之所安。

点【齐家典尚清远体验馆】,看你家装修要多少钱~
什么,装修还用自己的钱?!齐家装修分期,超低年利率3.55%起,最高可贷100万。立即申请享受优惠



